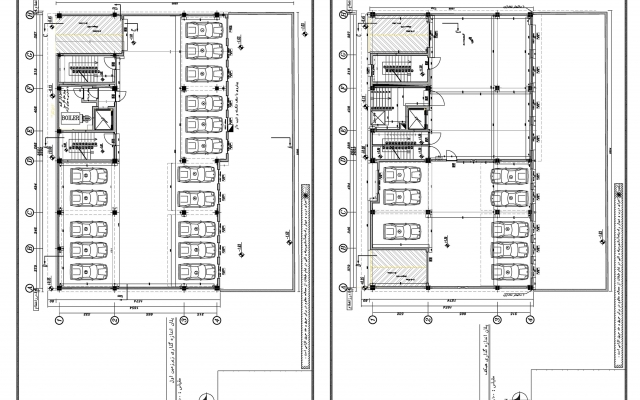
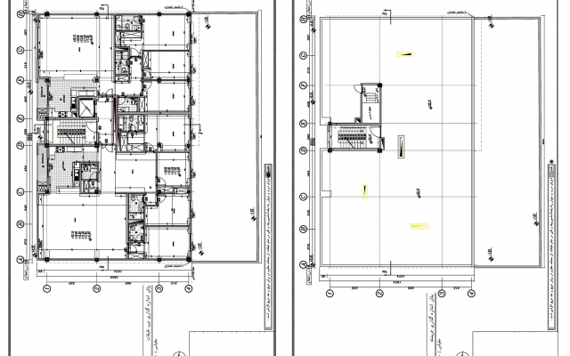
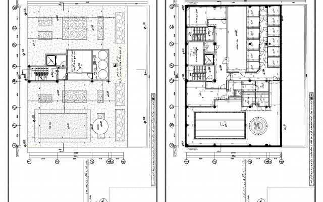
خدمت اصلی من، تبدیل ایدههای اولیه شما به نقشههای معماری استاندارد و هوشمند با استفاده از نرمافزار تخصصی Revit (مدلسازی BIM) است. این مدل هوشمند، خطاهای اجرایی را به صفر میرساند و سازگاری کامل بین پلان، برش و نما را تضمین میکند.
✅ ضمانت انطباق با ضوابط شهرداری:
تمامی نقشههای طراحی شده بر اساس آخرین ضوابط و مقررات فنی و شهرسازی شهرداری ترسیم میشوند تا فرآیند اخذ مجوز و تأییدیهها با حداقل مشکل انجام پذیرد.
ارتقاء پروژه شما: در صورت نیاز، من میتوانیم خدمات تکمیلی مانند طراحی نما و رندرینگ و سهبعدی حرفهای را نیز به صورت جداگانه و با اعلام هزینه به شما ارائه دهیم تا یک بسته طراحی کامل در اختیار داشته باشید.